Listed by AMANDA KATE LEMON of NEST REALTY GROUP

Listing Sold by MCLEAN FAULCONER INC., REALTOR
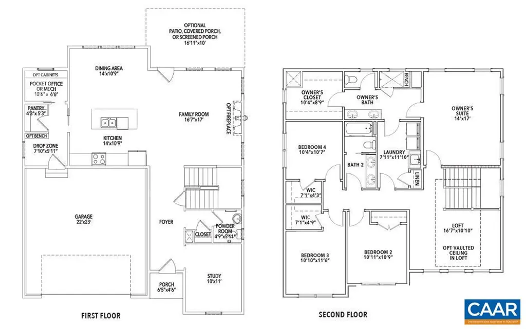
Discover modern living at The Grove at Brookhill, a brand-new neighborhood tucked among Charlottesville's scenic woods, yet minutes from the convenience of Route 29 North. This to-be-built Aspen home on an unfinished walkout basement features an open-concept design that balances airy flow with cozy, purposeful spaces. The main level includes a private study, a spacious walk-in pantry, a handy drop zone, and a large kitchen that seamlessly connects to the family room and dining area-perfect for entertaining or family time. Upstairs, a light-filled loft leads to a luxurious owner's suite with a connected laundry room for added ease, 3 additional bedrooms and a large hall bath. Basement can be finished with an optional rec room, bedroom and full bathroom. Enjoy quality features like 2x6 exterior walls, energy-efficient windows, wood shelving, a tankless water heater, and so much more. Photos show a completed Aspen floor plan, with optional upgraded features.

Listing Tools

Property Details of 1210 Laconia Lane

Property Details

Interior Features

Exterior Features

Map Location

 "Based on information submitted to CAAR - GAAR - HRAR as of December 16, 2025 6:40 AM EST . All data is deemed reliable but is not guaranteed accurate by the MLS. All information should be independently reviewed and verified for accuracy. IDX information is provided exclusively for consumers’ personal, noncommercial use and may not be used for any purpose other than to identify prospective properties consumers may be interested in purchasing."

 
 

 

 

Hi there! How can we help you?

Contact us using the form below or give us a call.

Send Us A Message:

I agree to receive marketing and customer service calls and text messages from Howard Hanna-Roy Wheeler | Virginia Gardner. To opt out, you can reply 'stop' at any time or click the unsubscribe link in the emails. Consent is not a condition of purchase. Msg/data rates may apply. Msg frequency varies. Privacy Policy.

Do not fill in this field:

This site is protected by reCAPTCHA and the Google Privacy Policy and Terms of Service apply.

Hi there! How can we help you?

Contact us using the form below or give us a call.

Send Us A Message:

Do not fill in this field:

This site is protected by reCAPTCHA and the Google Privacy Policy and Terms of Service apply.

Hi there! How can we help you?

Contact us using the form below or give us a call.

Send Us A Message:

Do not fill in this field:

This site is protected by reCAPTCHA and the Google Privacy Policy and Terms of Service apply.

Do not fill in this field:

This site is protected by reCAPTCHA and the Google Privacy Policy and Terms of Service apply.

Do not fill in this field:

This site is protected by reCAPTCHA and the Google Privacy Policy and Terms of Service apply.

Do not fill in this field:

This site is protected by reCAPTCHA and the Google Privacy Policy and Terms of Service apply.

$

Do not fill in this field:

This site is protected by reCAPTCHA and the Google Privacy Policy and Terms of Service apply.