Listed by CYNTHIA HASH of FIND HOMES REALTY LLC

Listing Sold by TARGET THE MARKET REAL ESTATE
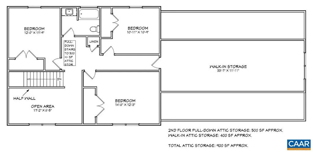
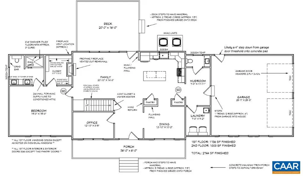
Brand new construction ALMOST FINISHED on Lot 72 at 162 Palmer Place in Ruckersville, VA 22968. Situated on a spacious 2-acre lot, this home offers a range of desirable features. The house features four bedrooms, including a convenient primary bedroom suite on the first floor. The kitchen is equipped with stainless steel appliances, a 7' x 3' island, and granite countertops. The bathrooms feature dovetail soft-close drawers and cultured marble vanity tops. Additional features include a two-car garage with a mudroom and half bath, a conditioned crawl space, and 2,744 square feet of finished living space. The home also boasts LVP flooring, a gas fireplace, a dedicated office, and a substantial 400 square feet of walk-in storage space on the second floor. Exterior features include a 216 square foot front covered porch with Miratec trim, a 320 square foot rear deck, an architectural asphalt roof, a passive radon pipe, and Dutch lap vinyl siding. The home has dual HVAC systems with separate thermostats, engineered floor joists, spray foam insulation, an asphalt driveway, a concrete sidewalk, and seamless gutters with underground downspout outlets.

Listing Tools

Property Details of 162 Palmer Place

Property Details

Interior Features

Exterior Features

Map Location

 "Based on information submitted to CAAR - GAAR - HRAR as of December 5, 2025 6:12 AM EST . All data is deemed reliable but is not guaranteed accurate by the MLS. All information should be independently reviewed and verified for accuracy. IDX information is provided exclusively for consumers’ personal, noncommercial use and may not be used for any purpose other than to identify prospective properties consumers may be interested in purchasing."

 
 

 

 

Hi there! How can we help you?

Contact us using the form below or give us a call.

Send Us A Message:

I agree to receive marketing and customer service calls and text messages from Howard Hanna-Roy Wheeler | Virginia Gardner. To opt out, you can reply 'stop' at any time or click the unsubscribe link in the emails. Consent is not a condition of purchase. Msg/data rates may apply. Msg frequency varies. Privacy Policy.

Do not fill in this field:

This site is protected by reCAPTCHA and the Google Privacy Policy and Terms of Service apply.

Hi there! How can we help you?

Contact us using the form below or give us a call.

Send Us A Message:

Do not fill in this field:

This site is protected by reCAPTCHA and the Google Privacy Policy and Terms of Service apply.

Hi there! How can we help you?

Contact us using the form below or give us a call.

Send Us A Message:

Do not fill in this field:

This site is protected by reCAPTCHA and the Google Privacy Policy and Terms of Service apply.

Do not fill in this field:

This site is protected by reCAPTCHA and the Google Privacy Policy and Terms of Service apply.

Do not fill in this field:

This site is protected by reCAPTCHA and the Google Privacy Policy and Terms of Service apply.

Do not fill in this field:

This site is protected by reCAPTCHA and the Google Privacy Policy and Terms of Service apply.

$

Do not fill in this field:

This site is protected by reCAPTCHA and the Google Privacy Policy and Terms of Service apply.