Listed by MIKE GAFFNEY of COMPASS-CHARLOTTESVILLE

Listing Sold by REAL ESTATE III, INC.
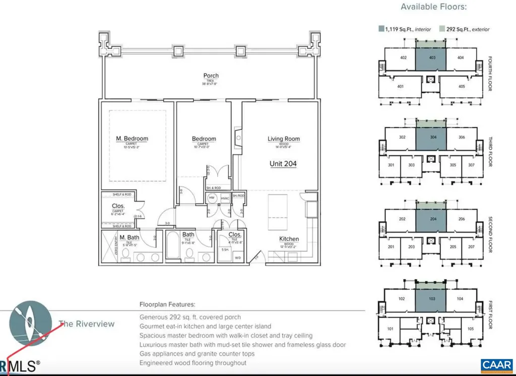
Welcome to this stunning 2-bed, 2-bath condo in The River House Condos at Riverside Village, offering over 1,100 sq ft in an elevator building, this home boasts a rare, oversized covered terrace with views of the scenic Rivanna River. Step inside to find tall ceilings, rich wood floors, and abundant natural light. The stylish and highly functional kitchen features granite countertops, a spacious island with a breakfast bar, and gas cooking. The living room is warm and inviting, with a stone-detailed gas fireplace, built-in shelving, and direct access to the terrace-perfect for seamless indoor-outdoor living. The primary suite is a private retreat, complete with terrace access, a generous walk-in closet and a beautifully appointed bath with a double vanity and a walk-in shower. The second bedroom is equally spacious, with its own access to the terrace. A convenient in-unit front-load stacked washer and dryer add to the ease of everyday living. Energy-efficient home is EarthCraft-certified, offering keyless entry security, a fitness room, and fire pit. A solar canopy provides 1 covered parking space, wired for electric vehicle charging. An additional exterior parking space and guest parking is available

Listing Tools

Property Details of 1425 Trailside Court, Unit 204

Property Details

Interior Features

Map Location

 "Based on information submitted to CAAR - GAAR - HRAR as of November 9, 2025 8:43 PM EST . All data is deemed reliable but is not guaranteed accurate by the MLS. All information should be independently reviewed and verified for accuracy. IDX information is provided exclusively for consumers’ personal, noncommercial use and may not be used for any purpose other than to identify prospective properties consumers may be interested in purchasing."

 
 

 

 

Hi there! How can we help you?

Contact us using the form below or give us a call.

Send Us A Message:

I agree to receive marketing and customer service calls and text messages from Howard Hanna-Roy Wheeler | Virginia Gardner. To opt out, you can reply 'stop' at any time or click the unsubscribe link in the emails. Consent is not a condition of purchase. Msg/data rates may apply. Msg frequency varies. Privacy Policy.

Do not fill in this field:

This site is protected by reCAPTCHA and the Google Privacy Policy and Terms of Service apply.

Hi there! How can we help you?

Contact us using the form below or give us a call.

Send Us A Message:

Do not fill in this field:

This site is protected by reCAPTCHA and the Google Privacy Policy and Terms of Service apply.

Hi there! How can we help you?

Contact us using the form below or give us a call.

Send Us A Message:

Do not fill in this field:

This site is protected by reCAPTCHA and the Google Privacy Policy and Terms of Service apply.

Do not fill in this field:

This site is protected by reCAPTCHA and the Google Privacy Policy and Terms of Service apply.

Do not fill in this field:

This site is protected by reCAPTCHA and the Google Privacy Policy and Terms of Service apply.

Do not fill in this field:

This site is protected by reCAPTCHA and the Google Privacy Policy and Terms of Service apply.

$

Do not fill in this field:

This site is protected by reCAPTCHA and the Google Privacy Policy and Terms of Service apply.