Listed by BRIANNE MRAZ of SM BROKERAGE,LLC

Listing Sold by COMPASS-CHARLOTTESVILLE
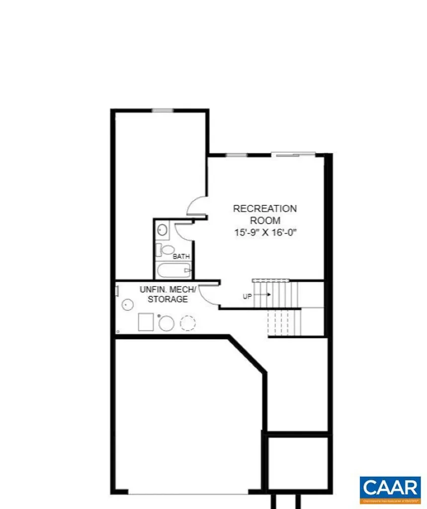
You'll be in love before you even walk through the front door of this under-construction stunner! Blocks from Downtown Crozet, past the Pleasant Green Playgrounds and Clubhouse, listen for the babbling brook in your backyard. You're almost home. Inside, you'll find thoughtful, practical spaces - a private foyer, convenient mud Room, flexible homework center or expanded pantry, and a semi-finished WALK OUT BASEMENT. Enjoy wooded views from the wall of windows in your Family Room or cozy up on your COVERED PORCH and enjoy the fresh Crozet air. The Open Concept Floorplan shows off Kitchen upgrades like a modern farmhouse sink, stunning tile backsplash, soft-close drawers, Carrera Marmo Quartz countertops, and a chic expanded central Island that provides additional storage and plenty of prep space! A beautiful Oak Staircase leads to your 17'X12.5' Primary Suite with a double vanity and tiled walk-in shower with a window. Large Secondary Bedrooms and a Bedroom Level Flex Space means plenty of space to spread out. On the Basement Level, you'll find a bright Rec Room, Full Bath, and two large unfinished spaces, perfect for extra storage or a future 4th Bedroom. Similar photos from previously built homes. Summer 2025 Completion!

Listing Tools

Property Details of 2957 Rambling Brook Lane

Property Details

Interior Features

Exterior Features

Map Location

 "Based on information submitted to CAAR - GAAR - HRAR as of March 14, 2026 5:12 AM EDT . All data is deemed reliable but is not guaranteed accurate by the MLS. All information should be independently reviewed and verified for accuracy. IDX information is provided exclusively for consumers’ personal, noncommercial use and may not be used for any purpose other than to identify prospective properties consumers may be interested in purchasing."

 
 

 

 

Hi there! How can we help you?

Contact us using the form below or give us a call.

Send Us A Message:

I agree to receive marketing and customer service calls and text messages from Howard Hanna-Roy Wheeler | Virginia Gardner. To opt out, you can reply 'stop' at any time or click the unsubscribe link in the emails. Consent is not a condition of purchase. Msg/data rates may apply. Msg frequency varies. Privacy Policy.

Do not fill in this field:

This site is protected by reCAPTCHA and the Google Privacy Policy and Terms of Service apply.

Hi there! How can we help you?

Contact us using the form below or give us a call.

Send Us A Message:

Do not fill in this field:

This site is protected by reCAPTCHA and the Google Privacy Policy and Terms of Service apply.

Hi there! How can we help you?

Contact us using the form below or give us a call.

Send Us A Message:

Do not fill in this field:

This site is protected by reCAPTCHA and the Google Privacy Policy and Terms of Service apply.

Do not fill in this field:

This site is protected by reCAPTCHA and the Google Privacy Policy and Terms of Service apply.

Do not fill in this field:

This site is protected by reCAPTCHA and the Google Privacy Policy and Terms of Service apply.

Do not fill in this field:

This site is protected by reCAPTCHA and the Google Privacy Policy and Terms of Service apply.

$

Do not fill in this field:

This site is protected by reCAPTCHA and the Google Privacy Policy and Terms of Service apply.