Listed by AMY MCLESKEY of THE NEW HOUSE COMPANY (OFC: 434-978-7900)

Listing Sold by FRANK HARDY SOTHEBY'S INTERNATIONAL REALTY
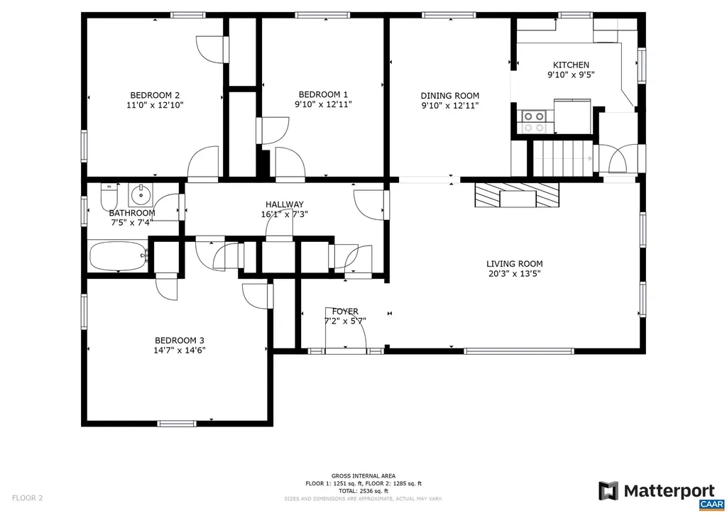
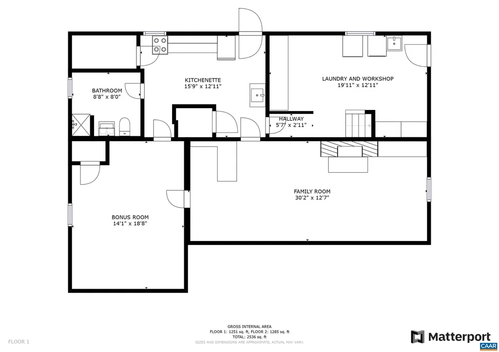
Great neighborhood for this fixer upper project! Welcome to 1515 Rutledge Avenue, a classic 1950s brick Ranch-style house located on a quiet cul-de-sac in the Greenbrier/Rugby Hills area of Charlottesville, VA. The ground floor features original hardwood floors throughout, 3 bedrooms and bath, a central fireplace, charming built-ins, and acres of closets that could be converted to a stack laundry area and/or a powder room. A full attic adds even more potential. The walk-out basement includes a rec room with bar and fireplace, bedroom/bath and full kitchen and laundry and can easily be rented out separately. Recently re-zoned R-A, this property allows for the conversion of the attached 2 car garage as an additional unit, making this property a great investment opportunity. Located just a short distance from downtown, UVA, and Route 29, this house has been successfully rented for over 20 years with steady income (ask agent for rental history). With all these opportunities for upgrades, the property is being sold “as is.” Don't miss out on this unique Charlottesville property offering a blank slate with endless possibilities. Owner will consider seller financing.

Listing Tools

Property Details of 1515 Rutledge Avenue

Property Details

Interior Features

Exterior Features

Map Location

 "Based on information submitted to CAAR - GAAR - HRAR as of November 16, 2025 4:11 AM EST . All data is deemed reliable but is not guaranteed accurate by the MLS. All information should be independently reviewed and verified for accuracy. IDX information is provided exclusively for consumers’ personal, noncommercial use and may not be used for any purpose other than to identify prospective properties consumers may be interested in purchasing."

 
 

 

 

Hi there! How can we help you?

Contact us using the form below or give us a call.

Send Us A Message:

I agree to receive marketing and customer service calls and text messages from Howard Hanna-Roy Wheeler | Virginia Gardner. To opt out, you can reply 'stop' at any time or click the unsubscribe link in the emails. Consent is not a condition of purchase. Msg/data rates may apply. Msg frequency varies. Privacy Policy.

Do not fill in this field:

This site is protected by reCAPTCHA and the Google Privacy Policy and Terms of Service apply.

Hi there! How can we help you?

Contact us using the form below or give us a call.

Send Us A Message:

Do not fill in this field:

This site is protected by reCAPTCHA and the Google Privacy Policy and Terms of Service apply.

Hi there! How can we help you?

Contact us using the form below or give us a call.

Send Us A Message:

Do not fill in this field:

This site is protected by reCAPTCHA and the Google Privacy Policy and Terms of Service apply.

Do not fill in this field:

This site is protected by reCAPTCHA and the Google Privacy Policy and Terms of Service apply.

Do not fill in this field:

This site is protected by reCAPTCHA and the Google Privacy Policy and Terms of Service apply.

Do not fill in this field:

This site is protected by reCAPTCHA and the Google Privacy Policy and Terms of Service apply.

$

Do not fill in this field:

This site is protected by reCAPTCHA and the Google Privacy Policy and Terms of Service apply.