Listed by TIM CARSON of REAL ESTATE III,INC.
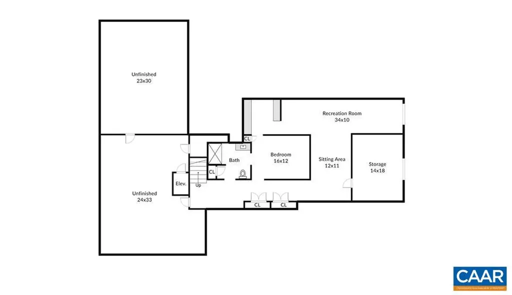
You will Love this home in North Garden with an ELEVATOR, and this one is accessible to all floors by wheelchair or scooter, and the design allows for a disabled person to have features to allow more independence! In terms of location, this property offers rural tranquility without compromising on accessibility. It's just a short 15-minute drive from The University of Virginia and close to Charlottesville VA. Southern Albemarle County, where the home is located, is known for its local vineyards and cideries. this spacious 4,417 sq ft home sits on a private 2-acre lot with breathtaking views. The elevated position of the property enhances its natural charm and appeal. The home features three bedrooms and three bathrooms. The primary bedroom and bath on the main level also has a special tub for easy transfer from a mobility device. The rear patio provides absolute privacy and quiet living! Lower level can be for a companion or guest quarters and there is tons of storage. Mature landscaping, lots of special features - Generac generator works for main floor only. There is a special air filtration system, instant hot water heat, central vac system in most of the rooms and more!

Listing Tools

Property Details of 4175 Edge Valley Road

Property Details

Interior Features

Exterior Features

Map Location

 "Based on information submitted to CAAR - GAAR - HRAR as of November 9, 2025 10:45 AM EST . All data is deemed reliable but is not guaranteed accurate by the MLS. All information should be independently reviewed and verified for accuracy. IDX information is provided exclusively for consumers’ personal, noncommercial use and may not be used for any purpose other than to identify prospective properties consumers may be interested in purchasing."

 
 

 

 

Hi there! How can we help you?

Contact us using the form below or give us a call.

Send Us A Message:

I agree to receive marketing and customer service calls and text messages from Howard Hanna-Roy Wheeler | Virginia Gardner. To opt out, you can reply 'stop' at any time or click the unsubscribe link in the emails. Consent is not a condition of purchase. Msg/data rates may apply. Msg frequency varies. Privacy Policy.

Do not fill in this field:

This site is protected by reCAPTCHA and the Google Privacy Policy and Terms of Service apply.

Hi there! How can we help you?

Contact us using the form below or give us a call.

Send Us A Message:

Do not fill in this field:

This site is protected by reCAPTCHA and the Google Privacy Policy and Terms of Service apply.

Hi there! How can we help you?

Contact us using the form below or give us a call.

Send Us A Message:

Do not fill in this field:

This site is protected by reCAPTCHA and the Google Privacy Policy and Terms of Service apply.

Do not fill in this field:

This site is protected by reCAPTCHA and the Google Privacy Policy and Terms of Service apply.

Do not fill in this field:

This site is protected by reCAPTCHA and the Google Privacy Policy and Terms of Service apply.

Do not fill in this field:

This site is protected by reCAPTCHA and the Google Privacy Policy and Terms of Service apply.

$

Do not fill in this field:

This site is protected by reCAPTCHA and the Google Privacy Policy and Terms of Service apply.