Listed by COLLEEN MARSHALL of HOWARD HANNA ROY WHEELER REALTY - ZION CROSSROADS
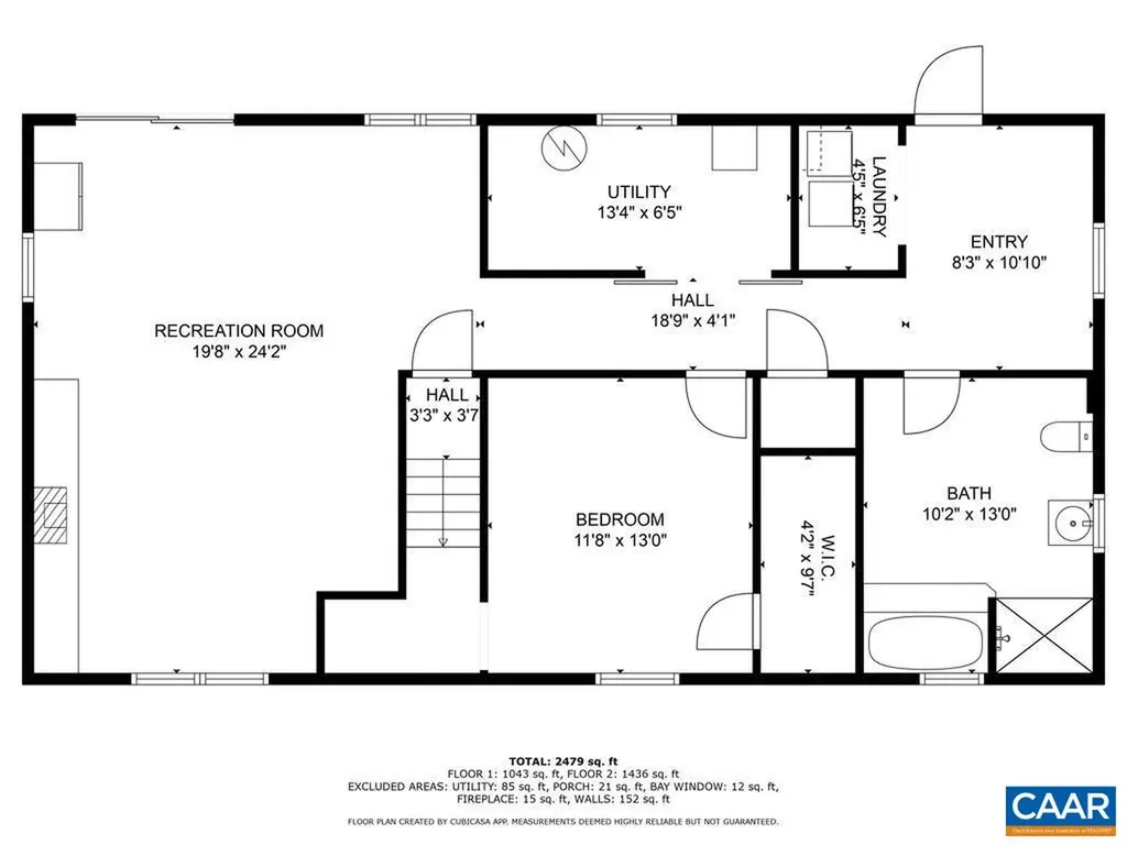
Located near the end of a quiet lane, your new escape awaits. Perfect for a farmette on 4 pastoral acres, this beautifully updated home has been lovingly renovated over time. Step inside to find an inviting living room and a bright, eat-in kitchen featuring locally sourced soapstone counters, a deep farmhouse sink, and abundant cabinetry. From here, walk out to the deck - the ideal spot to enjoy crisp Virginia fall days while taking in peaceful, private views and seasonal mountain vistas. The spacious primary suite includes a walk-in closet and a full bath with elegant tiled details. Two additional bedrooms and a stylish hall bath with tiled shower complete the main level. Downstairs, the expansive rec/family room opens to a large patio, offering great space for entertaining or relaxing. You'll also find a fourth bedroom (currently used as an artist's studio), a laundry/mudroom, utility room, and a beautifully appointed full bath with both a soaking tub and separate shower with charming tile accents. Step outside to, enjoy established gardens, a barn with additional lean-to storage, and a detached wooden carport. All this, just 15 minutes from Charlottesville - the perfect blend of country retreat and modern convenience.

Listing Tools

Property Details of 2450 Gobblers Ridge

Property Details

Interior Features

Exterior Features

Map Location

 "Based on information submitted to CAAR - GAAR - HRAR as of December 5, 2025 7:10 AM EST . All data is deemed reliable but is not guaranteed accurate by the MLS. All information should be independently reviewed and verified for accuracy. IDX information is provided exclusively for consumers’ personal, noncommercial use and may not be used for any purpose other than to identify prospective properties consumers may be interested in purchasing."

 
 

 

 

Hi there! How can we help you?

Contact us using the form below or give us a call.

Send Us A Message:

I agree to receive marketing and customer service calls and text messages from Howard Hanna-Roy Wheeler | Virginia Gardner. To opt out, you can reply 'stop' at any time or click the unsubscribe link in the emails. Consent is not a condition of purchase. Msg/data rates may apply. Msg frequency varies. Privacy Policy.

Do not fill in this field:

This site is protected by reCAPTCHA and the Google Privacy Policy and Terms of Service apply.

Hi there! How can we help you?

Contact us using the form below or give us a call.

Send Us A Message:

Do not fill in this field:

This site is protected by reCAPTCHA and the Google Privacy Policy and Terms of Service apply.

Hi there! How can we help you?

Contact us using the form below or give us a call.

Send Us A Message:

Do not fill in this field:

This site is protected by reCAPTCHA and the Google Privacy Policy and Terms of Service apply.

Do not fill in this field:

This site is protected by reCAPTCHA and the Google Privacy Policy and Terms of Service apply.

Do not fill in this field:

This site is protected by reCAPTCHA and the Google Privacy Policy and Terms of Service apply.

Do not fill in this field:

This site is protected by reCAPTCHA and the Google Privacy Policy and Terms of Service apply.

$

Do not fill in this field:

This site is protected by reCAPTCHA and the Google Privacy Policy and Terms of Service apply.