Listed by AMANDA KATE LEMON of NEST REALTY GROUP
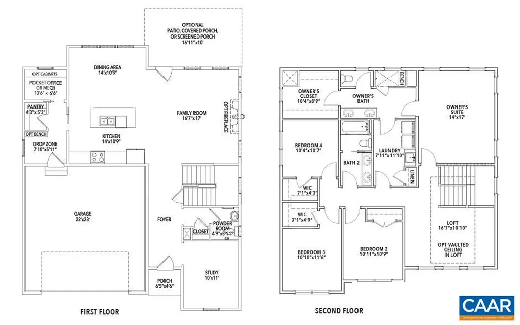
Build the "Aspen" floor plan from the ground up in Spring Creek. The main level centers around a spacious kitchen that connects easily to the family room and dining area, offering an open and functional layout. You'll also find a private study, walk-in pantry, half bath, and mudroom-thoughtful touches that make everyday routines simpler. Upstairs, there's a flexible loft space that can serve a variety of needs, along with a connected laundry room just off the primary suite for added ease. The primary suite includes a roomy bathroom, and there are three more bedrooms plus a shared split bath to round out the second floor. Standard features include 2x6 exterior walls, energy-efficient windows, wooden shelving, a tankless water heater, and a high-efficiency HVAC system. Photos shown are from a previously built Aspen plan and may include upgrades. Price may vary by elevation and lot; basement foundation is available. Estimated build time is 7 to 8 months, depending on the homesite.

Listing Tools

Property Details of L1-65E Bear Island Parkway

Property Details

Interior Features

Exterior Features

Map Location

 "Based on information submitted to CAAR - GAAR - HRAR as of February 18, 2026 7:40 AM EST . All data is deemed reliable but is not guaranteed accurate by the MLS. All information should be independently reviewed and verified for accuracy. IDX information is provided exclusively for consumers’ personal, noncommercial use and may not be used for any purpose other than to identify prospective properties consumers may be interested in purchasing."

 
 

 

 

Hi there! How can we help you?

Contact us using the form below or give us a call.

Send Us A Message:

I agree to receive marketing and customer service calls and text messages from Howard Hanna-Roy Wheeler | Virginia Gardner. To opt out, you can reply 'stop' at any time or click the unsubscribe link in the emails. Consent is not a condition of purchase. Msg/data rates may apply. Msg frequency varies. Privacy Policy.

Do not fill in this field:

This site is protected by reCAPTCHA and the Google Privacy Policy and Terms of Service apply.

Hi there! How can we help you?

Contact us using the form below or give us a call.

Send Us A Message:

Do not fill in this field:

This site is protected by reCAPTCHA and the Google Privacy Policy and Terms of Service apply.

Hi there! How can we help you?

Contact us using the form below or give us a call.

Send Us A Message:

Do not fill in this field:

This site is protected by reCAPTCHA and the Google Privacy Policy and Terms of Service apply.

Do not fill in this field:

This site is protected by reCAPTCHA and the Google Privacy Policy and Terms of Service apply.

Do not fill in this field:

This site is protected by reCAPTCHA and the Google Privacy Policy and Terms of Service apply.

Do not fill in this field:

This site is protected by reCAPTCHA and the Google Privacy Policy and Terms of Service apply.

$

Do not fill in this field:

This site is protected by reCAPTCHA and the Google Privacy Policy and Terms of Service apply.