Listed by LISA FLOOD of WINTERGREEN REALTY,LLC
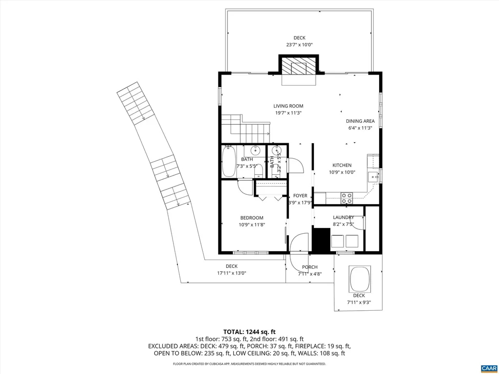
Move-in ready and beautifully finished mountain cottage ideally located at the end of a quiet cul-de-sac in Wintergreen, offering privacy, seasonal mountain views, and walkable access to the slopes. This well-maintained home has seen extensive updates and is being sold turn-key - ready for immediate enjoyment or continued rental use. Recent improvements since 2023 include an encapsulated crawlspace with dehumidifier, new hot tub with platform, rebuilt exterior stairs, stained deck, deck furniture, arcade game, and a fully stocked interior designed for short-term rental success. Multiple future rental reservations are already on the calendar, providing instant income potential if desired. Major updates 2020-2022 include a new roof, tankless water heater, renovated kitchen and bathrooms, interior paint, exterior paint, new upstairs carpet, paved driveway, gas fireplace installation, and complete chimney rebuild. Additional highlights include ample off-street parking, fenced backyard, and a peaceful mountain setting that balances convenience with privacy. A rare opportunity for a true turn-key Wintergreen retreat. Don't miss this one!

Listing Tools

Property Details of 138 Oak Lane

Property Details

Interior Features

Exterior Features

Map Location

 "Based on information submitted to CAAR - GAAR - HRAR as of February 18, 2026 7:40 AM EST . All data is deemed reliable but is not guaranteed accurate by the MLS. All information should be independently reviewed and verified for accuracy. IDX information is provided exclusively for consumers’ personal, noncommercial use and may not be used for any purpose other than to identify prospective properties consumers may be interested in purchasing."

 
 

 

 

Hi there! How can we help you?

Contact us using the form below or give us a call.

Send Us A Message:

I agree to receive marketing and customer service calls and text messages from Howard Hanna-Roy Wheeler | Virginia Gardner. To opt out, you can reply 'stop' at any time or click the unsubscribe link in the emails. Consent is not a condition of purchase. Msg/data rates may apply. Msg frequency varies. Privacy Policy.

Do not fill in this field:

This site is protected by reCAPTCHA and the Google Privacy Policy and Terms of Service apply.

Hi there! How can we help you?

Contact us using the form below or give us a call.

Send Us A Message:

Do not fill in this field:

This site is protected by reCAPTCHA and the Google Privacy Policy and Terms of Service apply.

Hi there! How can we help you?

Contact us using the form below or give us a call.

Send Us A Message:

Do not fill in this field:

This site is protected by reCAPTCHA and the Google Privacy Policy and Terms of Service apply.

Do not fill in this field:

This site is protected by reCAPTCHA and the Google Privacy Policy and Terms of Service apply.

Do not fill in this field:

This site is protected by reCAPTCHA and the Google Privacy Policy and Terms of Service apply.

Do not fill in this field:

This site is protected by reCAPTCHA and the Google Privacy Policy and Terms of Service apply.

$

Do not fill in this field:

This site is protected by reCAPTCHA and the Google Privacy Policy and Terms of Service apply.